Мы рады представить Вам двухкомнатную квартиру площадью 131 квадратный метр в жилом проекте Oia Residence.
Oia Residence — проект от компании-девелопера Union Properties, введенный в эксплуатацию в 2018 году. Это шестиэтажное здание с белым фасадом, панорамными окнами и балконами в голубых тонах.
Основной акцент в Oia Residence сделан на комфорте жильцов. В комплексе расположены открытые бассейны и сад с уютными зонами отдыха.
Комплекс также предоставляет доступ к современному тренажерному залу, сквош-корту и детской игровой площадке.
Одним из важных преимуществ Oia Residence является подземная парковка, предназначенная для личных автомобилей жильцов.
Для повышения комфорта жизни, в комплексе предоставляются разнообразные услуги, включая уборку помещений, бытовой ремонт и вывоз мусора.
Кроме того, на первом этаже комплекса находится вестибюль со стойкой регистрации и круглосуточной консьерж-службой, готовой помочь жильцам в решении любых вопросов.
Читать далее
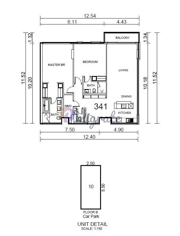
Планировкa
Характеристики
Район
Motor City
Адрес
ОАЭ, Дубай
Об объекте
Тип сделки
Продажа
Отделка
Есть
Тип объекта
Квартира
Санузлы
3
Общая площадь
131 м²
Уровней
1
Меблировка
Есть
Особенности
Сигнализация
Фонтан
Панорамные окна
Лифт пассажирский
Подземный паркинг
Система отопления
Площадка во дворе
Детская площадка
Вентиляция
Бассейн
Фитнес-центр
Высокие потолки
Ванная
Теннисный корт
Предоставление ВНЖ
Охрана
Душевая кабина
Профессиональная управляющая компания
Ресторан
Управляющая компания
Кондиционер
Консьерж-услуги
Огороженная охраняемая территория
Ландшафтный дизайн
Отопление
Паркинг
Огороженный внутренний двор с ландшафтным дизайном
Огороженная территория
Круглосуточная охрана
Балкон
Центральное кондиционирование
Инфраструктура
Консьерж-услуги
Wellness center
Аптека
Бар
Бассейн
Игровая комната
Детская площадка
Детский клуб
Кафе
Магазин
Магазин хозтоваров
Охрана
Парк
Ресторан
Спортивная площадка
Спортивный комплекс
Супермаркет
Теннисные корты
Торговый комплекс
Тренажерный зал
Фитнес-центр
Химчистка
Центральный ресепшн
Школа
Богатая инфраструктура района
Профессиональная УК
За рубеж — легко
Поможем найти дом вашей мечты и подобрать коммерческие объекты по всему миру.
Ваша заявка уже в работе. Наш эксперт свяжется с вами в ближайшее время.
Внимание!
Скорее всего, вы некорректно заполнили одно или несколько полей формы. Проверьте пожалуйста.
Позвоните мне
Получить подборку
Хотите первыми узнать о доступных предложениях?
Скачать презентацию
Для продолжения скачивания презентации, пожалуйста, укажите ваши данные
Получить индивидуальную консультацию
Соглашение об использовании cookie-файлов. NF Group
1. Общие сведения
На Сайтах АО «НФ Групп» (далее - Сайтах) применяется технология сбора информации с использованием cookie-файлов, которая позволяет повысить эффективность Сайтов, Сервисов АО «НФ Групп». Сookie-файлы — это небольшие текстовые файлы, размещаемые на пользовательском устройстве веб-сайтами, которые посещались пользователем. Они широко используются для того, чтобы веб-сайты могли работать эффективнее, а также, чтобы предоставлять необходимую информацию владельцам, администрации веб-сайта. Использование cookie-файлов - стандартная на данный момент практика для большинства веб-сайтов. Посещая Сайты, пользователь соглашается с условиями использования cookie-файлов, описанными в настоящем документе, в том числе с тем, что АО «НФ Групп» (Адрес: 127006, г. Москва, Воротниковский пер., д. 8, стр. 1) может использовать cookie-файлы и иные данные для их последующей обработки, а также может передавать их третьим лицам для проведения исследований и предоставления услуг Партнерами АО «НФ Групп».
2. Цели использования cookie-файлов
Целями использования cookie-файлов на Сайтах АО «НФ Групп» являются:
- повышение удобства использования Сайтов АО «НФ Групп» (оптимизация структуры и содержимого Сайтов АО «НФ Групп»);
- персонализация взаимодействия (таргетированная реклама объявлений);
- оптимизация сервисов, услуг на сайтах АО «НФ Групп» в соответствии с интересами и потребностями пользователей;
- создание профиля пользователей;
- идентификации пользователей;
- оценка эффективности рекламных кампаний.
Для достижения указанных целей, собираемые данные могут передаваться Партнерам АО «НФ Групп», которые оказывают помощь АО «НФ Групп» в предоставлении услуг. К категориям таких получателей относятся: веб-аналитика, обработка данных, реклама, информационные и рекламные рассылки и другие услуги.
3. Прекращение использования cookie-файлов
На Сайтах АО «НФ Групп» используются cookie-файлы двух разных типов:
- сеансовые cookie-файлы. Это временные файлы cookie, которые хранятся на устройстве пользователя до того момента, когда пользователь покидает Сайты АО «НФ Групп»;
- постоянные cookie-файлы. Эти cookie-файлы остаются на устройстве пользователя на длительный срок или вплоть до момента их ручного удаления.
Прекращение использования cookie-файлов на Сайтах АО «НФ Групп» возможно путем:
- отключения использования cookie-файлов в настройках веб-браузера;
- отказа от использования Сайтов АО «НФ Групп».
Отключение используемых Сайтами АО «НФ Групп» cookie-файлов может привести к снижению удобства использования Сайтами АО «НФ Групп». Большинство браузеров позволяют просматривать, удалять и блокировать cookie-файлы c веб-сайтов. Информация по управлению cookie-файлами может быть найдена в документации на используемый браузер.