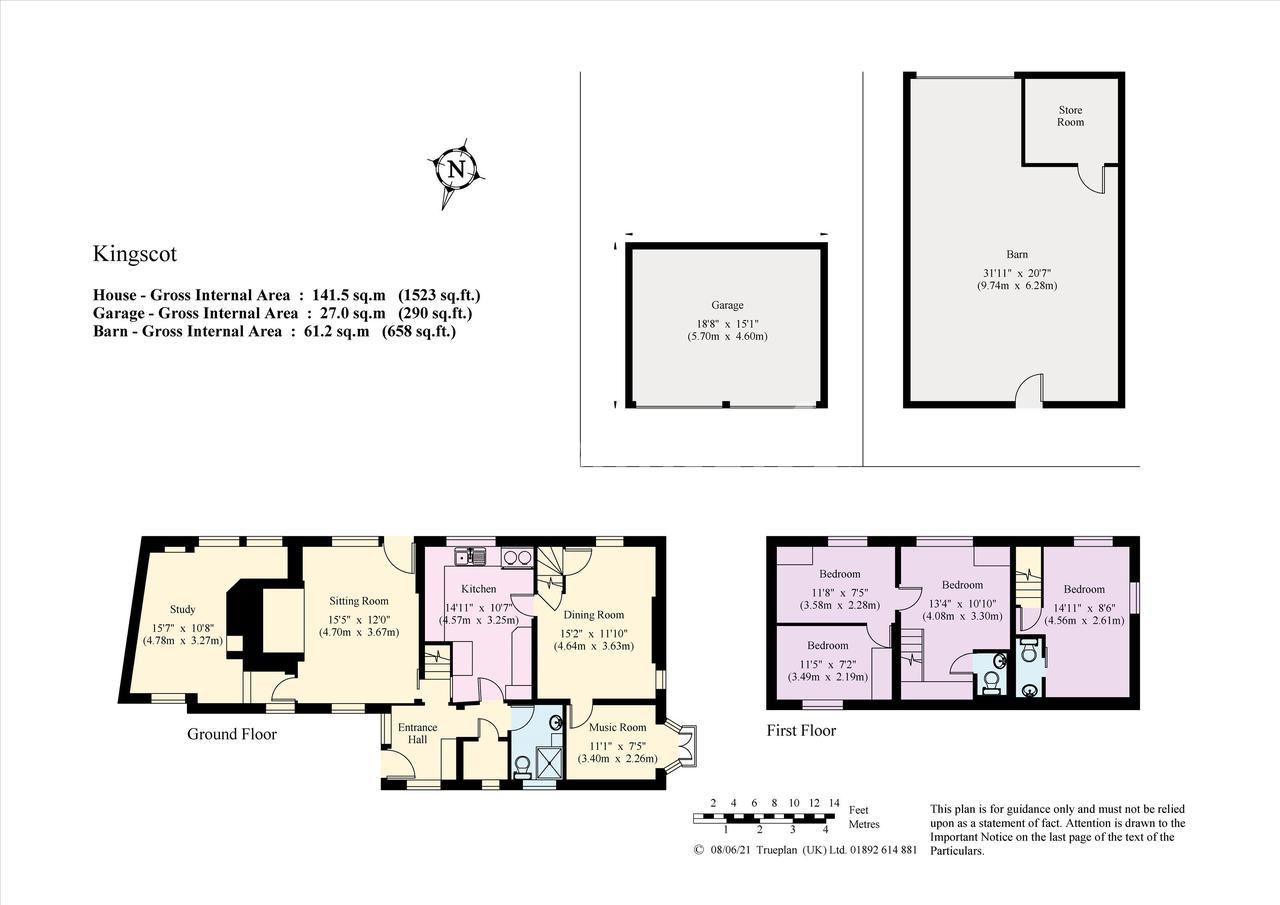
Первоначально построенный в 16 веке и с захватывающим видом на окружающую долину (и первоначально с соломенной крышей), Кингскот представляет собой очаровательный дом, внесенный в список памятников архитектуры II степени, с открытым деревянным каркасом и шиферной крышей. Дом расположен в исторической деревне Кент Оффхэм, которая упоминается в Книге судного дня как Офехэм и имеет записи, относящиеся к 832 году нашей эры, когда король Этельвульф подарил землю церкви Христа в Кентербери. Кингскот расположен на южной линии хребта деревни, откуда открывается вид на окружающую сельскую местность. Расположенный в почти 2 акрах садов и угодий, дом обладает отличной конфиденциальностью и идеальным местом для детей или развлечений на свежем воздухе. Дом состоит из двух этажей и вводится с северной стороны рядом с просторной парковкой. Кухня (с балочным потолком и окном на южную сторону) и столовая составляют основу жилого пространства на юго-западной стороне дома, а гостиная с центральным балочным объемным камином и дверью в сад и примыкающий кабинет расположены на восточной боковая сторона. Музыкальная комната/дополнительный кабинет затем выходит из столовой, а гостевой туалет находится рядом с прихожей. В доме две лестницы; одна из столовой, которая ведет к спальне с двуспальной кроватью (с окнами на южную и западную стороны) и туалету над столовой, и главная лестница из прихожей, которая ведет к текущей конфигурации спальни с двуспальной кроватью с туалетом, который ведет дальше на две дополнительные комнаты. Снаружи двери гостиной ведут на прекрасную каменную террасу, выходящую на южную сторону, со ступеньками в сад и прекрасным видом. Сады в основном разбиты на газоны, а территория простирается на юг и юго-запад от участка. На северной стороне находится гараж на две машины с большой парковкой вместе с газоном на верхнем этаже с различными навесами и овощными полями.
Читать далее
Характеристики
Район
Kent
Адрес
Великобритания, Kent, West Malling
Об объекте
Тип сделки
Продажа
Тип объекта
Вилла
Санузлы
1
Общая площадь
230 м²
Участок
77 сот
Уровней
1
За рубеж — легко
Поможем найти дом вашей мечты и подобрать коммерческие объекты по всему миру.
Ваша заявка уже в работе. Наш эксперт свяжется с вами в ближайшее время.
Внимание!
Скорее всего, вы некорректно заполнили одно или несколько полей формы. Проверьте пожалуйста.
Позвоните мне
Получить подборку
Хотите первыми узнать о доступных предложениях?
Скачать презентацию
Для продолжения скачивания презентации, пожалуйста, укажите ваши данные
Получить индивидуальную консультацию
Соглашение об использовании cookie-файлов. NF Group
1. Общие сведения
На Сайтах АО «НФ Групп» (далее - Сайтах) применяется технология сбора информации с использованием cookie-файлов, которая позволяет повысить эффективность Сайтов, Сервисов АО «НФ Групп». Сookie-файлы — это небольшие текстовые файлы, размещаемые на пользовательском устройстве веб-сайтами, которые посещались пользователем. Они широко используются для того, чтобы веб-сайты могли работать эффективнее, а также, чтобы предоставлять необходимую информацию владельцам, администрации веб-сайта. Использование cookie-файлов - стандартная на данный момент практика для большинства веб-сайтов. Посещая Сайты, пользователь соглашается с условиями использования cookie-файлов, описанными в настоящем документе, в том числе с тем, что АО «НФ Групп» (Адрес: 127006, г. Москва, Воротниковский пер., д. 8, стр. 1) может использовать cookie-файлы и иные данные для их последующей обработки, а также может передавать их третьим лицам для проведения исследований и предоставления услуг Партнерами АО «НФ Групп».
2. Цели использования cookie-файлов
Целями использования cookie-файлов на Сайтах АО «НФ Групп» являются:
- повышение удобства использования Сайтов АО «НФ Групп» (оптимизация структуры и содержимого Сайтов АО «НФ Групп»);
- персонализация взаимодействия (таргетированная реклама объявлений);
- оптимизация сервисов, услуг на сайтах АО «НФ Групп» в соответствии с интересами и потребностями пользователей;
- создание профиля пользователей;
- идентификации пользователей;
- оценка эффективности рекламных кампаний.
Для достижения указанных целей, собираемые данные могут передаваться Партнерам АО «НФ Групп», которые оказывают помощь АО «НФ Групп» в предоставлении услуг. К категориям таких получателей относятся: веб-аналитика, обработка данных, реклама, информационные и рекламные рассылки и другие услуги.
3. Прекращение использования cookie-файлов
На Сайтах АО «НФ Групп» используются cookie-файлы двух разных типов:
- сеансовые cookie-файлы. Это временные файлы cookie, которые хранятся на устройстве пользователя до того момента, когда пользователь покидает Сайты АО «НФ Групп»;
- постоянные cookie-файлы. Эти cookie-файлы остаются на устройстве пользователя на длительный срок или вплоть до момента их ручного удаления.
Прекращение использования cookie-файлов на Сайтах АО «НФ Групп» возможно путем:
- отключения использования cookie-файлов в настройках веб-браузера;
- отказа от использования Сайтов АО «НФ Групп».
Отключение используемых Сайтами АО «НФ Групп» cookie-файлов может привести к снижению удобства использования Сайтами АО «НФ Групп». Большинство браузеров позволяют просматривать, удалять и блокировать cookie-файлы c веб-сайтов. Информация по управлению cookie-файлами может быть найдена в документации на используемый браузер.