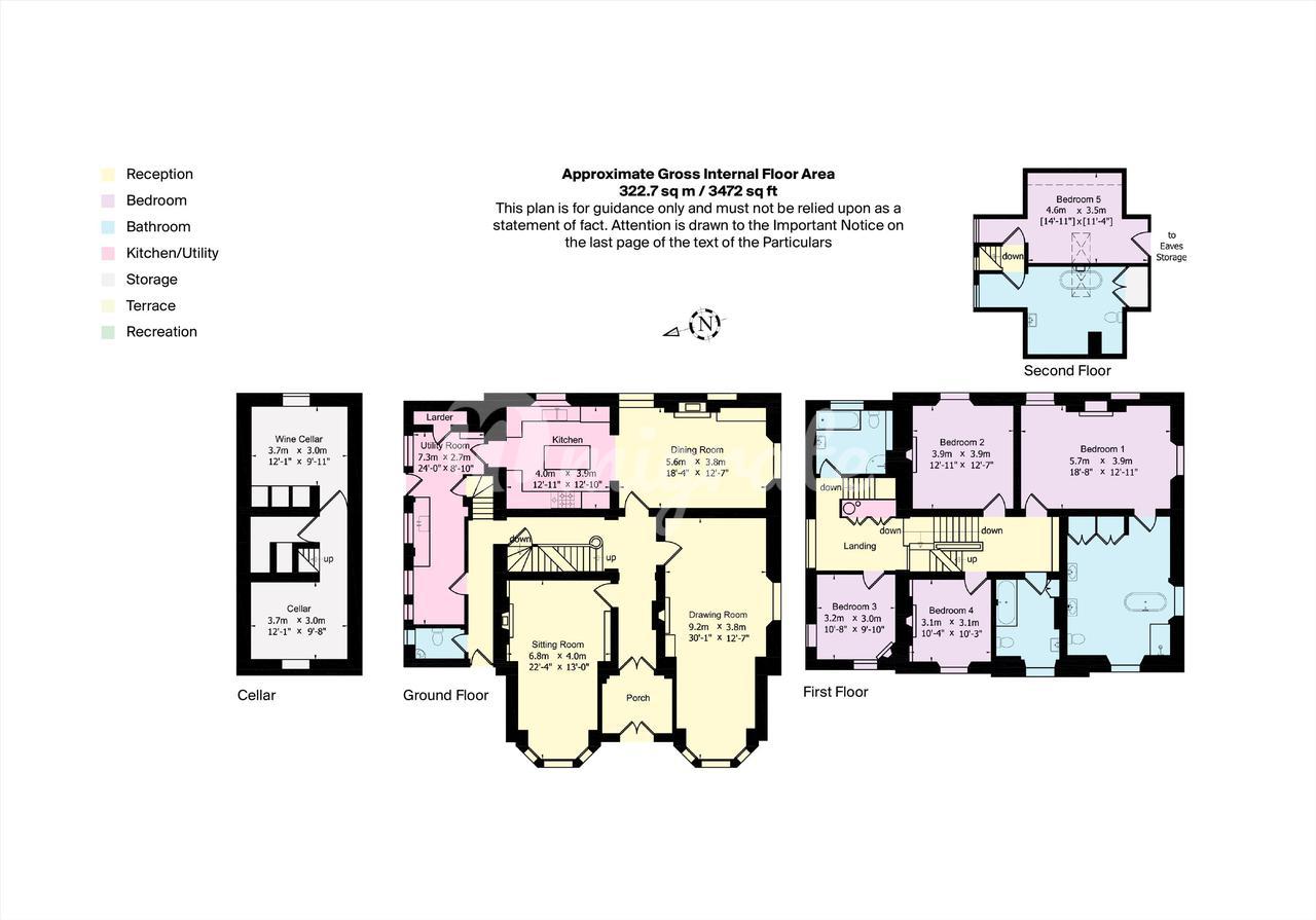
Построенный в 1726 году, The Old Rectory представляет собой классически красивое бывшее здание приходского священника в георгианском стиле, внесенное в список памятников архитектуры II степени. Он находится в типичном загородном поселке с церковью через сад. Собственность претерпела комплексную реставрацию и реконструкцию, когда она была куплена нынешними владельцами десять лет назад, и теперь это красивый и уютный семейный дом. Дом имеет большое очарование и сохранил многие из своих первоначальных черт, включая каменные и деревянные полы, камины, карнизы и створчатые окна с рабочими ставнями. На первом этаже находится крыльцо и холл, выложенные каменными плитами, с красивой лестницей, поднимающейся на второй этаж, с доступом к подвалам и гардеробу. Есть две приемные комнаты с высокими эркерами и деревянными полами. В кухне-столовой есть оригинальный валлийский комод, раскрашенные на заказ предметы и газовая плита Rangemaster. Рядом с кухней находится подсобное помещение, в котором есть кладовая. На первом этаже находятся главная спальня и ванная комната, еще три спальни с двуспальными кроватями, еще две ванные комнаты и лестница в еще одну спальню с двуспальной кроватью и прилегающую ванную комнату. Недавно в селе был установлен сверхбыстрый широкополосный интернет со скоростью 30 МБ в секунду.
Непосредственно к дому примыкает посыпанная гравием парковка, рядом с которой находится симпатичный каретный сарай, внесенный в список памятников архитектуры II степени, который включает в себя оригинальную конюшню с кирпичным полом и тремя стойлами, кладовую и два отдельных гаража с кладовой на чердаке наверху. Это имеет большой потенциал в качестве пристройки или домашнего офиса при условии разрешения на строительство. Сад простирается вокруг дома с трех сторон, с большой лужайкой, спускающейся к церкви, цветочными бордюрами и несколькими смешанными деревьями, включая пестрый падуб, зрелые тисы и бук. В задней части дома находится теплица и огород с несколькими приподнятыми бордюрами и множеством мягких фруктов. За каретным двором находится курятник и фруктовый сад с яблонями, грушами, сливами, зеленью и кокосовыми деревьями. За формальным садом находится участок дикого сада, состоящий из россыпи взрослых деревьев, засаженных весенними луковицами и ограниченный оградой парка поместья. Все сады простираются примерно на 1,24 акра (0,5 га).
Читать далее
Характеристики
Район
Dorset
Адрес
Великобритания, Dorset, Dorchester
Об объекте
Тип сделки
Продажа
Тип объекта
Вилла
Санузлы
4
Общая площадь
323 м²
Участок
50 сот
Уровней
1
За рубеж — легко
Поможем найти дом вашей мечты и подобрать коммерческие объекты по всему миру.
Ваша заявка уже в работе. Наш эксперт свяжется с вами в ближайшее время.
Внимание!
Скорее всего, вы некорректно заполнили одно или несколько полей формы. Проверьте пожалуйста.
Позвоните мне
Получить подборку
Хотите первыми узнать о доступных предложениях?
Скачать презентацию
Для продолжения скачивания презентации, пожалуйста, укажите ваши данные
Получить индивидуальную консультацию
Соглашение об использовании cookie-файлов. NF Group
1. Общие сведения
На Сайтах АО «НФ Групп» (далее - Сайтах) применяется технология сбора информации с использованием cookie-файлов, которая позволяет повысить эффективность Сайтов, Сервисов АО «НФ Групп». Сookie-файлы — это небольшие текстовые файлы, размещаемые на пользовательском устройстве веб-сайтами, которые посещались пользователем. Они широко используются для того, чтобы веб-сайты могли работать эффективнее, а также, чтобы предоставлять необходимую информацию владельцам, администрации веб-сайта. Использование cookie-файлов - стандартная на данный момент практика для большинства веб-сайтов. Посещая Сайты, пользователь соглашается с условиями использования cookie-файлов, описанными в настоящем документе, в том числе с тем, что АО «НФ Групп» (Адрес: 127006, г. Москва, Воротниковский пер., д. 8, стр. 1) может использовать cookie-файлы и иные данные для их последующей обработки, а также может передавать их третьим лицам для проведения исследований и предоставления услуг Партнерами АО «НФ Групп».
2. Цели использования cookie-файлов
Целями использования cookie-файлов на Сайтах АО «НФ Групп» являются:
- повышение удобства использования Сайтов АО «НФ Групп» (оптимизация структуры и содержимого Сайтов АО «НФ Групп»);
- персонализация взаимодействия (таргетированная реклама объявлений);
- оптимизация сервисов, услуг на сайтах АО «НФ Групп» в соответствии с интересами и потребностями пользователей;
- создание профиля пользователей;
- идентификации пользователей;
- оценка эффективности рекламных кампаний.
Для достижения указанных целей, собираемые данные могут передаваться Партнерам АО «НФ Групп», которые оказывают помощь АО «НФ Групп» в предоставлении услуг. К категориям таких получателей относятся: веб-аналитика, обработка данных, реклама, информационные и рекламные рассылки и другие услуги.
3. Прекращение использования cookie-файлов
На Сайтах АО «НФ Групп» используются cookie-файлы двух разных типов:
- сеансовые cookie-файлы. Это временные файлы cookie, которые хранятся на устройстве пользователя до того момента, когда пользователь покидает Сайты АО «НФ Групп»;
- постоянные cookie-файлы. Эти cookie-файлы остаются на устройстве пользователя на длительный срок или вплоть до момента их ручного удаления.
Прекращение использования cookie-файлов на Сайтах АО «НФ Групп» возможно путем:
- отключения использования cookie-файлов в настройках веб-браузера;
- отказа от использования Сайтов АО «НФ Групп».
Отключение используемых Сайтами АО «НФ Групп» cookie-файлов может привести к снижению удобства использования Сайтами АО «НФ Групп». Большинство браузеров позволяют просматривать, удалять и блокировать cookie-файлы c веб-сайтов. Информация по управлению cookie-файлами может быть найдена в документации на используемый браузер.