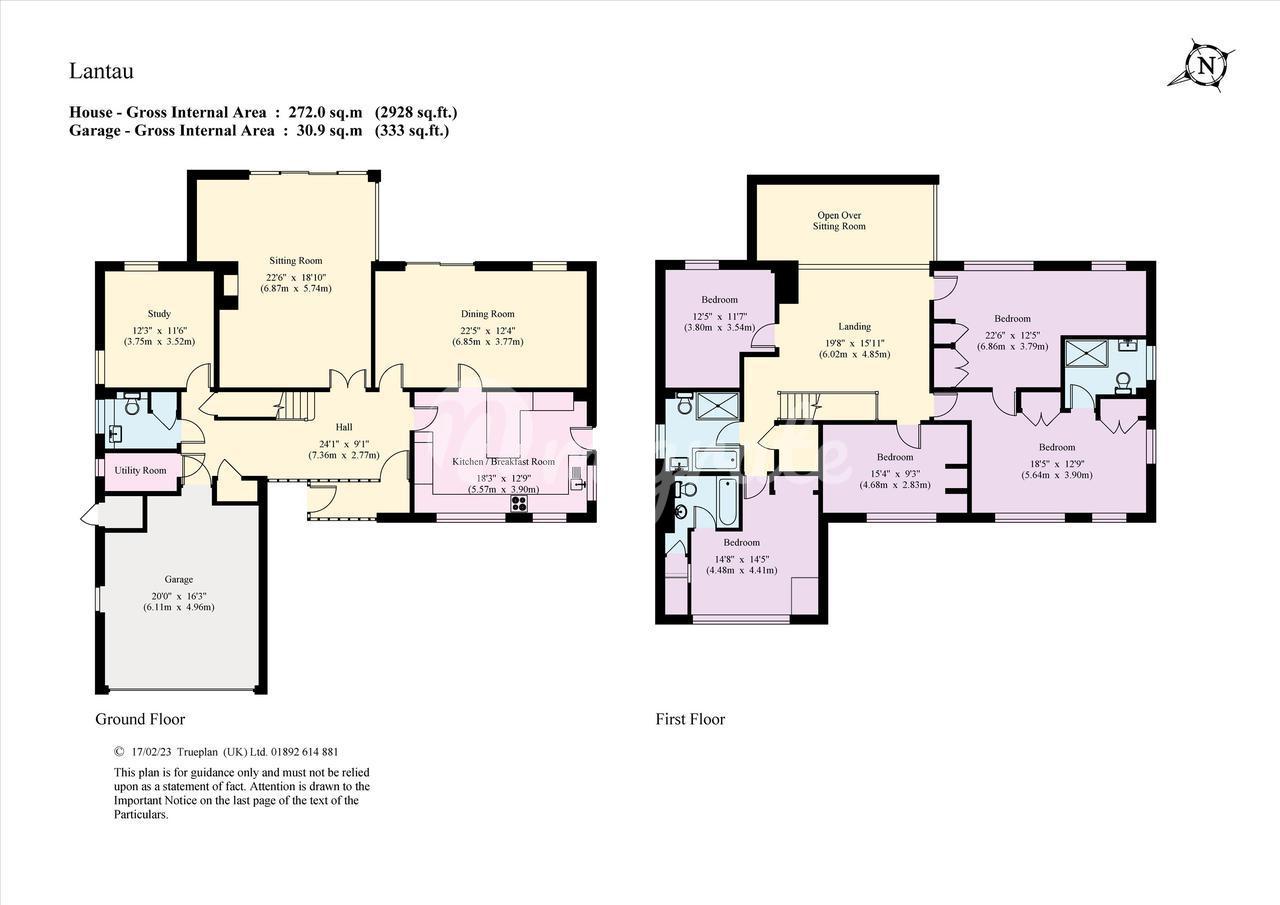
Лантау - это превосходный отдельно стоящий семейный дом с пятью спальнями, расположенный в поместье Уайлдернесс в удобном месте для Кноул-парка, Севеноукс-хай-стрит и центрального железнодорожного вокзала. Недвижимость находится в одной собственности в течение 25 лет и предлагает просторные и пропорциональные помещения, расположенные на двух этажах и простирающиеся почти на 3000 кв. футов. Разбитые сады являются особой особенностью собственности с участком, составляющим примерно 0,55 акра. Входная дверь открывается на внутреннюю веранду с еще одной дверью, ведущей в главный холл, который обеспечивает доступ к основным комнатам для приемов и кухне / залу для завтраков. Существует также отдельный туалет с прилегающим подсобным помещением, а также прямой доступ к встроенному гаражу на две машины. Кухня была оборудована привлекательным ассортиментом настенных и базовых блоков, а также полуостровом с барной стойкой и кварцевыми столешницами. Существует также отличный ассортимент встроенной бытовой техники. Кухня двойная, с дверью, обеспечивающей выход на привлекательную боковую террасу с видом на восхитительный палисадник. Рядом находится столовая с правильными пропорциями, в которую также можно попасть из холла. Раздвижные двери ведут на просторную каменную террасу с центральными ступенями, спускающимися в сад. Особенностью дома является гостиная с частично сводчатым потолком и окнами двойной высоты, из которых открывается прекрасный вид на сад. Существует также еще одна приемная, которая в настоящее время используется в качестве кабинета и завершает размещение на первом этаже.
Первый этаж включает в себя просторную лестничную площадку, которая в настоящее время оборудована как зона для чтения. Главная спальня с двуспальной кроватью, двумя встроенными шкафами и хорошо оборудованной ванной комнатой с душем. Есть еще четыре спальни с двуспальными кроватями, одна из которых обслуживается собственной ванной комнатой, а также семейная ванная комната с отдельной ванной и душевой кабиной. Одна из этих комнат в настоящее время используется в качестве дополнительного кабинета.
Внешне участок расположен на значительном удалении от дороги и окружен живой изгородью из зрелого бука. Мощеная подъездная дорожка обеспечивает просторную парковку наряду со встроенным гаражом. Палисадник в основном разбит на газон со зрелыми бордюрами, а также с боковым доступом к задней части дома. Разбитый сад на заднем дворе в основном представляет собой газон с живой изгородью из зрелого бука, обеспечивающий превосходную степень уединения. Приподнятая терраса, вымощенная камнем, образует ширину участка и обеспечивает идеальную зону для развлечений на свежем воздухе.
Читать далее
Характеристики
Район
Kent
Адрес
Великобритания, Kent, Севенокс
Об объекте
Тип сделки
Продажа
Тип объекта
Вилла
Санузлы
3
Общая площадь
309 м²
Уровней
1
За рубеж — легко
Поможем найти дом вашей мечты и подобрать коммерческие объекты по всему миру.
Ваша заявка уже в работе. Наш эксперт свяжется с вами в ближайшее время.
Внимание!
Скорее всего, вы некорректно заполнили одно или несколько полей формы. Проверьте пожалуйста.
Позвоните мне
Получить подборку
Хотите первыми узнать о доступных предложениях?
Скачать презентацию
Для продолжения скачивания презентации, пожалуйста, укажите ваши данные
Получить индивидуальную консультацию
Соглашение об использовании cookie-файлов. NF Group
1. Общие сведения
На Сайтах АО «НФ Групп» (далее - Сайтах) применяется технология сбора информации с использованием cookie-файлов, которая позволяет повысить эффективность Сайтов, Сервисов АО «НФ Групп». Сookie-файлы — это небольшие текстовые файлы, размещаемые на пользовательском устройстве веб-сайтами, которые посещались пользователем. Они широко используются для того, чтобы веб-сайты могли работать эффективнее, а также, чтобы предоставлять необходимую информацию владельцам, администрации веб-сайта. Использование cookie-файлов - стандартная на данный момент практика для большинства веб-сайтов. Посещая Сайты, пользователь соглашается с условиями использования cookie-файлов, описанными в настоящем документе, в том числе с тем, что АО «НФ Групп» (Адрес: 127006, г. Москва, Воротниковский пер., д. 8, стр. 1) может использовать cookie-файлы и иные данные для их последующей обработки, а также может передавать их третьим лицам для проведения исследований и предоставления услуг Партнерами АО «НФ Групп».
2. Цели использования cookie-файлов
Целями использования cookie-файлов на Сайтах АО «НФ Групп» являются:
- повышение удобства использования Сайтов АО «НФ Групп» (оптимизация структуры и содержимого Сайтов АО «НФ Групп»);
- персонализация взаимодействия (таргетированная реклама объявлений);
- оптимизация сервисов, услуг на сайтах АО «НФ Групп» в соответствии с интересами и потребностями пользователей;
- создание профиля пользователей;
- идентификации пользователей;
- оценка эффективности рекламных кампаний.
Для достижения указанных целей, собираемые данные могут передаваться Партнерам АО «НФ Групп», которые оказывают помощь АО «НФ Групп» в предоставлении услуг. К категориям таких получателей относятся: веб-аналитика, обработка данных, реклама, информационные и рекламные рассылки и другие услуги.
3. Прекращение использования cookie-файлов
На Сайтах АО «НФ Групп» используются cookie-файлы двух разных типов:
- сеансовые cookie-файлы. Это временные файлы cookie, которые хранятся на устройстве пользователя до того момента, когда пользователь покидает Сайты АО «НФ Групп»;
- постоянные cookie-файлы. Эти cookie-файлы остаются на устройстве пользователя на длительный срок или вплоть до момента их ручного удаления.
Прекращение использования cookie-файлов на Сайтах АО «НФ Групп» возможно путем:
- отключения использования cookie-файлов в настройках веб-браузера;
- отказа от использования Сайтов АО «НФ Групп».
Отключение используемых Сайтами АО «НФ Групп» cookie-файлов может привести к снижению удобства использования Сайтами АО «НФ Групп». Большинство браузеров позволяют просматривать, удалять и блокировать cookie-файлы c веб-сайтов. Информация по управлению cookie-файлами может быть найдена в документации на используемый браузер.