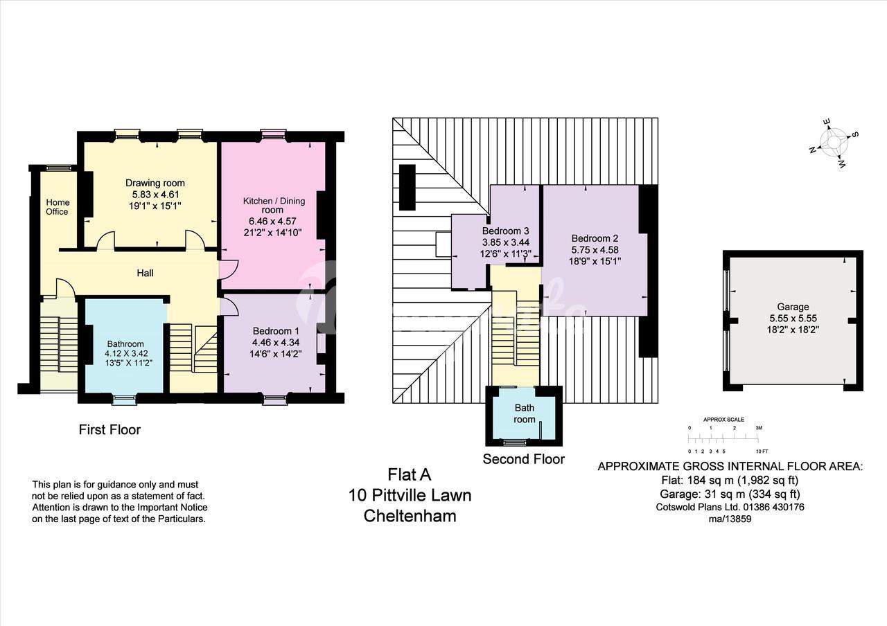
Pittville Lawn — это красивая квартира, внесенная в список памятников архитектуры II категории, в которой был проведен тщательный ремонт. Размещение является одновременно гибким и универсальным, с множеством старинных элементов, включая детализированные карнизы, оригинальные окна и двери. Размещение включает в себя три спальни, хорошо сбалансированную кухню-столовую, красивую гостиную и роскошную ванную комнату с отдельно стоящей ванной с закругленными краями и двумя раковинами. Снаружи есть отдельный гараж на две машины и одно парковочное место, что делает эту квартиру совершенно уникальной и впечатляющей. Территория перед и за домом содержится в хорошем состоянии, а вид на улицу и доступ к центру Челтнема очень удобны, а парк Питтвилл находится всего в 300 ярдах. Есть частный задний сад в задней части собственности, которая является общим пространством для всех трех квартир и заднего доступа к гаражу.
Аренда 193 года Арендная плата за землю £67 в год Страхование зданий £120 в год. Техническое обслуживание уточняется.
Читать далее
Характеристики
Район
Gloucestershire
Адрес
Великобритания, Gloucestershire, Челтнем
Об объекте
Тип сделки
Продажа
Тип объекта
Квартира
Санузлы
2
Общая площадь
184 м²
Уровней
1
За рубеж — легко
Поможем найти дом вашей мечты и подобрать коммерческие объекты по всему миру.
Ваша заявка уже в работе. Наш эксперт свяжется с вами в ближайшее время.
Внимание!
Скорее всего, вы некорректно заполнили одно или несколько полей формы. Проверьте пожалуйста.
Позвоните мне
Получить подборку
Хотите первыми узнать о доступных предложениях?
Скачать презентацию
Для продолжения скачивания презентации, пожалуйста, укажите ваши данные
Получить индивидуальную консультацию
Соглашение об использовании cookie-файлов. NF Group
1. Общие сведения
На Сайтах АО «НФ Групп» (далее - Сайтах) применяется технология сбора информации с использованием cookie-файлов, которая позволяет повысить эффективность Сайтов, Сервисов АО «НФ Групп». Сookie-файлы — это небольшие текстовые файлы, размещаемые на пользовательском устройстве веб-сайтами, которые посещались пользователем. Они широко используются для того, чтобы веб-сайты могли работать эффективнее, а также, чтобы предоставлять необходимую информацию владельцам, администрации веб-сайта. Использование cookie-файлов - стандартная на данный момент практика для большинства веб-сайтов. Посещая Сайты, пользователь соглашается с условиями использования cookie-файлов, описанными в настоящем документе, в том числе с тем, что АО «НФ Групп» (Адрес: 127006, г. Москва, Воротниковский пер., д. 8, стр. 1) может использовать cookie-файлы и иные данные для их последующей обработки, а также может передавать их третьим лицам для проведения исследований и предоставления услуг Партнерами АО «НФ Групп».
2. Цели использования cookie-файлов
Целями использования cookie-файлов на Сайтах АО «НФ Групп» являются:
- повышение удобства использования Сайтов АО «НФ Групп» (оптимизация структуры и содержимого Сайтов АО «НФ Групп»);
- персонализация взаимодействия (таргетированная реклама объявлений);
- оптимизация сервисов, услуг на сайтах АО «НФ Групп» в соответствии с интересами и потребностями пользователей;
- создание профиля пользователей;
- идентификации пользователей;
- оценка эффективности рекламных кампаний.
Для достижения указанных целей, собираемые данные могут передаваться Партнерам АО «НФ Групп», которые оказывают помощь АО «НФ Групп» в предоставлении услуг. К категориям таких получателей относятся: веб-аналитика, обработка данных, реклама, информационные и рекламные рассылки и другие услуги.
3. Прекращение использования cookie-файлов
На Сайтах АО «НФ Групп» используются cookie-файлы двух разных типов:
- сеансовые cookie-файлы. Это временные файлы cookie, которые хранятся на устройстве пользователя до того момента, когда пользователь покидает Сайты АО «НФ Групп»;
- постоянные cookie-файлы. Эти cookie-файлы остаются на устройстве пользователя на длительный срок или вплоть до момента их ручного удаления.
Прекращение использования cookie-файлов на Сайтах АО «НФ Групп» возможно путем:
- отключения использования cookie-файлов в настройках веб-браузера;
- отказа от использования Сайтов АО «НФ Групп».
Отключение используемых Сайтами АО «НФ Групп» cookie-файлов может привести к снижению удобства использования Сайтами АО «НФ Групп». Большинство браузеров позволяют просматривать, удалять и блокировать cookie-файлы c веб-сайтов. Информация по управлению cookie-файлами может быть найдена в документации на используемый браузер.