Представляем эту ПОТРЯСАЮЩУЮ квартиру в Heaton House от Elevate Property Group. Эксклюзивный закрытый комплекс красивых таунхаусов и апартаментов в историческом Ювелирном квартале в Бирмингеме.
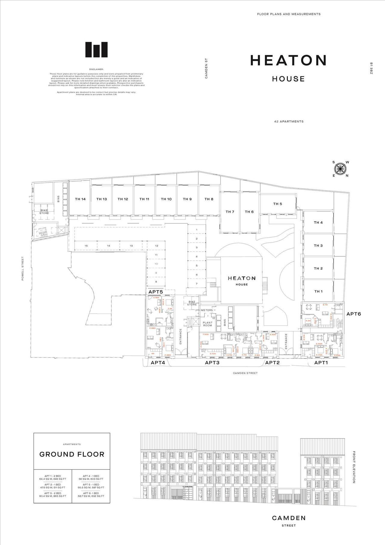
Хитон-Хаус был домом ведущего бирмингемского торговца Уильяма Коттерилла и считался вторым старейшим жилым домом в Бирмингеме. План будет состоять из 14 таунхаусов с тремя и четырьмя спальнями, террасных садов, закрытой парковки на территории и 42 квартир с одной и двумя спальнями, включая 6 лофтов, и реставрации исторической виллы в георгианском стиле.
Таунхаусы будут находиться в собственности, а квартиры — в аренде.
*Присоединяйтесь к нам на нашем мероприятии по запуску в четверг, 20 января, в 17:00 в отеле Saint Paul's, Бирмингем*
Это мероприятие проводится только по предварительной записи, поэтому свяжитесь с нами сейчас, чтобы забронировать место.
Мы советуем участникам не присутствовать, если у них положительный результат теста на COVID-19, они ждут результатов теста на COVID-19 или если у вас проявляются какие-либо симптомы COVID-19.
Перед мероприятием от участников не требуется предоставлять отрицательный результат теста в соответствии с указаниями правительства. Тем не менее, проведение теста на боковой поток является личным выбором, и мы рекомендуем вам делать то, что позволяет вам чувствовать себя наиболее комфортно в течение дня.
В отеле Saint Paul's будут приняты меры по борьбе с COVID-19, и на протяжении всего мероприятия будут соблюдаться протоколы безопасности.
Если у вас есть вопросы, звоните по телефону 0121 233 6495.
Предполагаемое завершение в третьем квартале 2022 года.
Эта ПОТРЯСАЮЩАЯ квартира с 1 спальней будет включать в себя:
• Электрическое отопление со стильным панельным обогревателем, управляемым через WiFi, и емкостным водонагревателем с электрическим погружным электронагревателем. • Выключатели и розетки из матовой нержавеющей стали с разъемами USB на кухне и в спальнях для удобной зарядки устройств. • Современные кухни с широким выбором встроенных напольных и настенных шкафов с современными столешницами из ламината с прямоугольными краями. Высококачественная бытовая техника, включая электрическую плиту, плиту и вытяжку, встроенный холодильник с морозильной камерой, встроенную посудомоечную машину и встроенную стиральную машину с сушкой в большинстве квартир. • Сантехника Duravit и медная посуда Hansgrohe, горячая вода под давлением, душевой поддон и перегородка в 1 спальном месте, дополнительная ванна в 2 спальных местах • Современные двери, в том числе скобяные изделия из матовой нержавеющей стали, противопожарные двери, где это применимо. • Встраиваемые светодиодные прожекторы с низким энергопотреблением для кухни и ванных комнат, светодиоды под шкафом для кухни, подвесные светильники для гостиной и прихожей. • Противопожарные спринклеры, включая автономные датчики дыма/тепла • Карандашный круглый плинтус и наличник окрашены белой краской из яичной скорлупы. • Белая эмульсионная краска для всех оштукатуренных стен и потолков • Плитка Porcelanosa на полах в ванных комнатах и части стен во влажных помещениях • Ковры в спальнях и LVT-полы везде, кроме влажных помещений. • Меры по снижению шума, включая акустическую обработку полов и внутренних стен, а также повышенную звукоизоляцию наружных окон. • Клавиатурный вход в общий подъезд с доступом по видеодомофону из квартир • Видеонаблюдение подъездов и автостоянок • Цифровая антенна и передача сигнала Freeview на телевизионную точку в гостиной и спальне. • Входящий высокоскоростной кабель Virgin/BT с несколькими точками передачи данных
Предполагаемое завершение в третьем квартале 2022 года.
Заявление об отказе от ответственности за изображение - компьютерная графика и реальные изображения предназначены только для иллюстративных целей.
Читать далее
Характеристики
Район
West Midlands
Адрес
Великобритания, West Midlands, Бирмингем
Об объекте
Тип сделки
Продажа
Тип объекта
Квартира
Санузлы
1
Общая площадь
40 м²
Уровней
1
За рубеж — легко
Поможем найти дом вашей мечты и подобрать коммерческие объекты по всему миру.
Ваша заявка уже в работе. Наш эксперт свяжется с вами в ближайшее время.
Внимание!
Скорее всего, вы некорректно заполнили одно или несколько полей формы. Проверьте пожалуйста.
Позвоните мне
Получить подборку
Хотите первыми узнать о доступных предложениях?
Скачать презентацию
Для продолжения скачивания презентации, пожалуйста, укажите ваши данные
Получить индивидуальную консультацию
Соглашение об использовании cookie-файлов. NF Group
1. Общие сведения
На Сайтах АО «НФ Групп» (далее - Сайтах) применяется технология сбора информации с использованием cookie-файлов, которая позволяет повысить эффективность Сайтов, Сервисов АО «НФ Групп». Сookie-файлы — это небольшие текстовые файлы, размещаемые на пользовательском устройстве веб-сайтами, которые посещались пользователем. Они широко используются для того, чтобы веб-сайты могли работать эффективнее, а также, чтобы предоставлять необходимую информацию владельцам, администрации веб-сайта. Использование cookie-файлов - стандартная на данный момент практика для большинства веб-сайтов. Посещая Сайты, пользователь соглашается с условиями использования cookie-файлов, описанными в настоящем документе, в том числе с тем, что АО «НФ Групп» (Адрес: 127006, г. Москва, Воротниковский пер., д. 8, стр. 1) может использовать cookie-файлы и иные данные для их последующей обработки, а также может передавать их третьим лицам для проведения исследований и предоставления услуг Партнерами АО «НФ Групп».
2. Цели использования cookie-файлов
Целями использования cookie-файлов на Сайтах АО «НФ Групп» являются:
- повышение удобства использования Сайтов АО «НФ Групп» (оптимизация структуры и содержимого Сайтов АО «НФ Групп»);
- персонализация взаимодействия (таргетированная реклама объявлений);
- оптимизация сервисов, услуг на сайтах АО «НФ Групп» в соответствии с интересами и потребностями пользователей;
- создание профиля пользователей;
- идентификации пользователей;
- оценка эффективности рекламных кампаний.
Для достижения указанных целей, собираемые данные могут передаваться Партнерам АО «НФ Групп», которые оказывают помощь АО «НФ Групп» в предоставлении услуг. К категориям таких получателей относятся: веб-аналитика, обработка данных, реклама, информационные и рекламные рассылки и другие услуги.
3. Прекращение использования cookie-файлов
На Сайтах АО «НФ Групп» используются cookie-файлы двух разных типов:
- сеансовые cookie-файлы. Это временные файлы cookie, которые хранятся на устройстве пользователя до того момента, когда пользователь покидает Сайты АО «НФ Групп»;
- постоянные cookie-файлы. Эти cookie-файлы остаются на устройстве пользователя на длительный срок или вплоть до момента их ручного удаления.
Прекращение использования cookie-файлов на Сайтах АО «НФ Групп» возможно путем:
- отключения использования cookie-файлов в настройках веб-браузера;
- отказа от использования Сайтов АО «НФ Групп».
Отключение используемых Сайтами АО «НФ Групп» cookie-файлов может привести к снижению удобства использования Сайтами АО «НФ Групп». Большинство браузеров позволяют просматривать, удалять и блокировать cookie-файлы c веб-сайтов. Информация по управлению cookie-файлами может быть найдена в документации на используемый браузер.