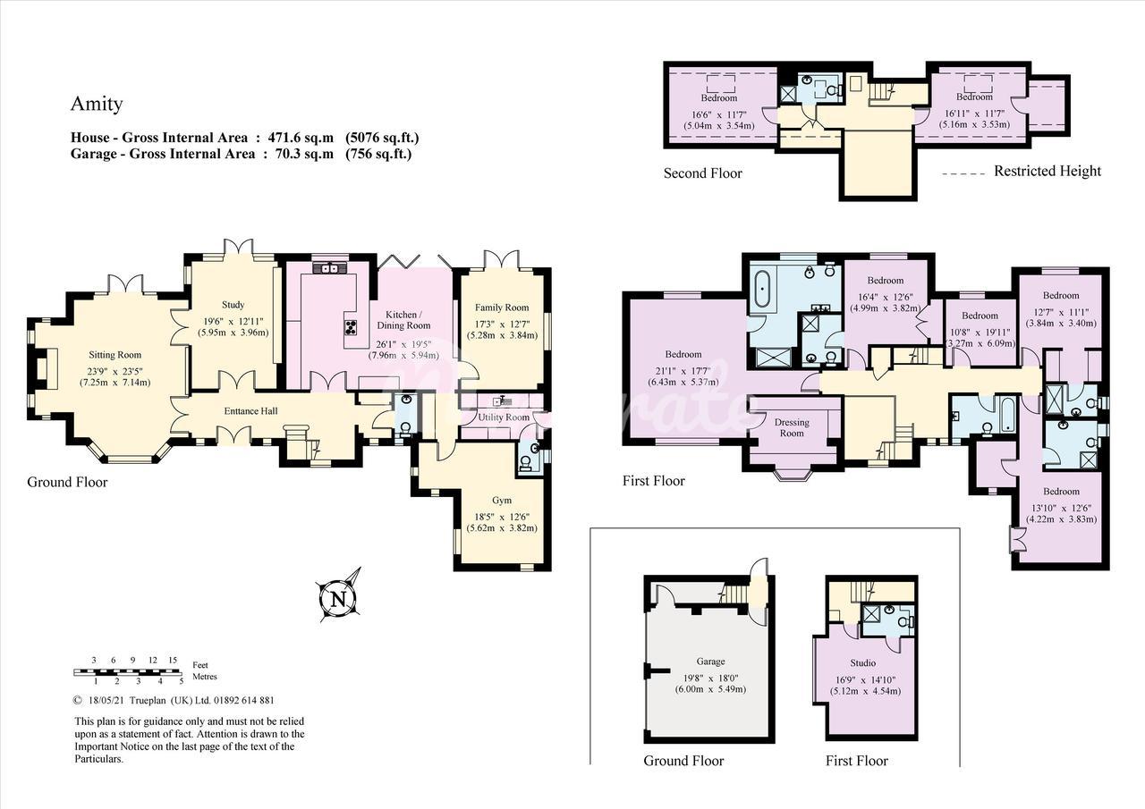
Расположенный в Clenches Farm Lane, который является частным тупиком, обслуживающим всего несколько домов в поместье Kippington Estate, отель представляет собой великолепную резиденцию, расположенную на участке площадью 0,3 акра. Этот исключительный дом был спроектирован с превосходными техническими характеристиками и вниманием к деталям и предлагает просторные помещения, расположенные на трех этажах. Первый этаж был спроектирован таким образом, чтобы максимизировать жилое и развлекательное пространство с отличным выбором приемных, а также прекрасной кухней / столовой. Коридор тройной высоты с пятиметровым окном над лестницей, обеспечивающим обилие естественного света. Трехсторонняя гостиная имеет щедрые пропорции и извлекает выгоду из камина в стиле inglenook с печью. К этому примыкает кабинет, в котором на заказ установлены шкафы от пола до потолка и стеллажи. Обе комнаты имеют прямой выход в сад через двойные двери.
Кухня/столовая открытой планировки была полностью оборудована привлекательным набором настенных и тумб, а также центральным островом. Также имеется отличный ассортимент встроенной техники. Двустворчатые двери открываются на террасу. К этой зоне примыкает семейная комната, которая в настоящее время используется как игровая. Двойные двери обеспечивают дальнейший доступ в сад. От столовой ведет подсобное помещение с отдельным туалетом и еще одна приемная, которая в настоящее время используется как тренажерный зал. Существует также дополнительный туалет от вестибюля, который завершает размещение на первом этаже.
Впечатляющая лестница ведет на второй этаж с просторной площадкой, обеспечивающей доступ к пяти спальням и семейной ванной комнате. Основная спальня очень хорошо оборудована и может похвастаться большой спальней и превосходной ванной комнатой, а также отдельной полностью оборудованной гардеробной. Во втором люксе есть душевая и отдельная гардеробная. В третьей и четвертой спальнях есть душевые комнаты, а также гардеробная и встроенные шкафы соответственно. Пятая спальня с семейной ванной напротив завершает размещение на первом этаже. На втором этаже есть еще две спальни вместе с отдельной душевой комнатой.
Снаружи к дому можно подъехать через пару ворот с электроприводом, которые ведут по гравийной дороге с парковкой на несколько автомобилей. Существует также отдельно стоящее гаражное здание, в котором есть гараж на две машины с внутренней лестницей, дающей доступ к пристройке над ней, состоящей из просторной комнаты и отдельной душевой. К задней части собственности ландшафтные сады в основном положены на лужайку с хорошо укомплектованными границами кустарника и установленными деревьями, обеспечивающими конфиденциальность и уединение. Существует также большой внутренний дворик, который простирается на всю ширину собственности и обеспечивает идеальное место для развлечений на свежем воздухе.
Читать далее
Характеристики
Район
Kent
Адрес
Великобритания, Kent, Севенокс
Об объекте
Тип сделки
Продажа
Тип объекта
Вилла
Санузлы
7
Общая площадь
495 м²
Уровней
1
За рубеж — легко
Поможем найти дом вашей мечты и подобрать коммерческие объекты по всему миру.
Ваша заявка уже в работе. Наш эксперт свяжется с вами в ближайшее время.
Внимание!
Скорее всего, вы некорректно заполнили одно или несколько полей формы. Проверьте пожалуйста.
Позвоните мне
Получить подборку
Хотите первыми узнать о доступных предложениях?
Скачать презентацию
Для продолжения скачивания презентации, пожалуйста, укажите ваши данные
Получить индивидуальную консультацию
Соглашение об использовании cookie-файлов. NF Group
1. Общие сведения
На Сайтах АО «НФ Групп» (далее - Сайтах) применяется технология сбора информации с использованием cookie-файлов, которая позволяет повысить эффективность Сайтов, Сервисов АО «НФ Групп». Сookie-файлы — это небольшие текстовые файлы, размещаемые на пользовательском устройстве веб-сайтами, которые посещались пользователем. Они широко используются для того, чтобы веб-сайты могли работать эффективнее, а также, чтобы предоставлять необходимую информацию владельцам, администрации веб-сайта. Использование cookie-файлов - стандартная на данный момент практика для большинства веб-сайтов. Посещая Сайты, пользователь соглашается с условиями использования cookie-файлов, описанными в настоящем документе, в том числе с тем, что АО «НФ Групп» (Адрес: 127006, г. Москва, Воротниковский пер., д. 8, стр. 1) может использовать cookie-файлы и иные данные для их последующей обработки, а также может передавать их третьим лицам для проведения исследований и предоставления услуг Партнерами АО «НФ Групп».
2. Цели использования cookie-файлов
Целями использования cookie-файлов на Сайтах АО «НФ Групп» являются:
- повышение удобства использования Сайтов АО «НФ Групп» (оптимизация структуры и содержимого Сайтов АО «НФ Групп»);
- персонализация взаимодействия (таргетированная реклама объявлений);
- оптимизация сервисов, услуг на сайтах АО «НФ Групп» в соответствии с интересами и потребностями пользователей;
- создание профиля пользователей;
- идентификации пользователей;
- оценка эффективности рекламных кампаний.
Для достижения указанных целей, собираемые данные могут передаваться Партнерам АО «НФ Групп», которые оказывают помощь АО «НФ Групп» в предоставлении услуг. К категориям таких получателей относятся: веб-аналитика, обработка данных, реклама, информационные и рекламные рассылки и другие услуги.
3. Прекращение использования cookie-файлов
На Сайтах АО «НФ Групп» используются cookie-файлы двух разных типов:
- сеансовые cookie-файлы. Это временные файлы cookie, которые хранятся на устройстве пользователя до того момента, когда пользователь покидает Сайты АО «НФ Групп»;
- постоянные cookie-файлы. Эти cookie-файлы остаются на устройстве пользователя на длительный срок или вплоть до момента их ручного удаления.
Прекращение использования cookie-файлов на Сайтах АО «НФ Групп» возможно путем:
- отключения использования cookie-файлов в настройках веб-браузера;
- отказа от использования Сайтов АО «НФ Групп».
Отключение используемых Сайтами АО «НФ Групп» cookie-файлов может привести к снижению удобства использования Сайтами АО «НФ Групп». Большинство браузеров позволяют просматривать, удалять и блокировать cookie-файлы c веб-сайтов. Информация по управлению cookie-файлами может быть найдена в документации на используемый браузер.