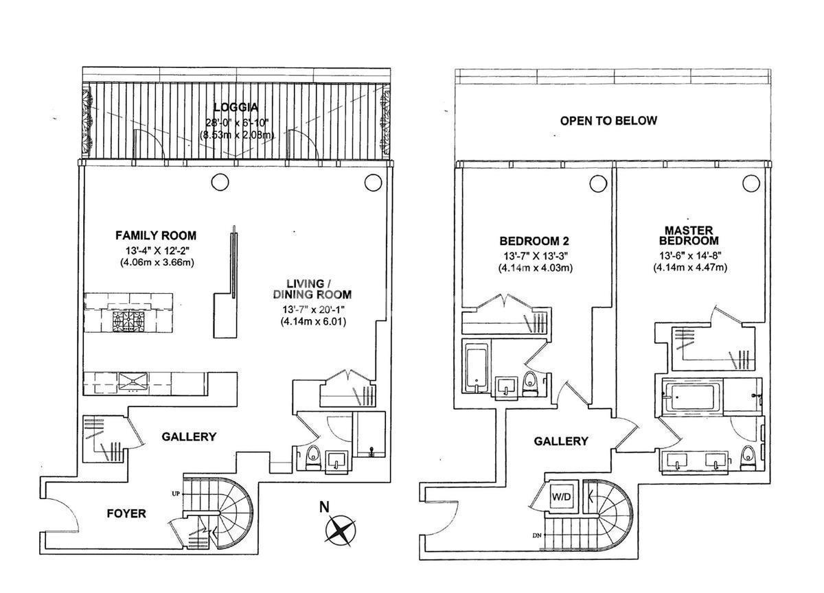
Кондоминиум на Уоррен-стрит, 101, отличное расположение в Трайбеке - Этот просторный дуплекс с 2 спальнями, 3 мраморными ванными комнатами (интерьер площадью 1890 кв.м плюс потрясающая терраса площадью 229 кв.м со стеклянными перилами) из окон от пола до потолка открывается вид на город на севере, на Эмпайр Стейт Билдинг и Вашингтон Маркет Парк. Первый уровень предлагает изящную входную галерею, полноценную ванную комнату, роскошно отделанную мрамором, открытую кухню и столовую европейского уровня, оснащенную каменными столешницами и полностью встроенной техникой Sub-Zero и Miele, огромную гостиную / семейную комнату с выходом на большую частную террасу. Верхний уровень предлагает: Отдельный вход с галереей, главную и вторую спальни с ванными комнатами, отделанными мрамором Imperial Danby и плиткой Bianco Lucido, фурнитурой Dornbracht, встроенными шкафами и бескаркасными стеклянными душевыми кабинами. Другие особенности апартаментов включают в себя: потолки высотой 10 футов, полы из орехового дерева с богатой отделкой, электрические жалюзи Somfy solar и затемняющие шторы, изготовленные на заказ калифорнийские шкафы-купе, современные системы кондиционирования воздуха с отдельным управлением и W / D. Услуги здания включают: Швейцара/консьержа 24 часа в сутки, бесплатный доступ в павильон, который предлагает фитнес-центр и спа, лаундж Resident, солнечную террасу, окруженную сосновым лесом, детскую игровую площадку, бизнес-конференц-центр и подземную парковку с доступом в вестибюль. Мир 101 Warren Street также предлагает максимальное удобство благодаря новой сети первоклассных розничных магазинов, включая Whole Foods, Barnes & Noble, Bed Bath & Beyond и Soul Cycle.
Характеристики
Адрес
США, Нью-Йорк
Об объекте
Тип сделки
Продажа
Тип объекта
Апартаменты
Санузлы
3
Общая площадь
176 м²
Уровней
1
За рубеж — легко
Поможем найти дом вашей мечты и подобрать коммерческие объекты по всему миру.
Ваша заявка уже в работе. Наш эксперт свяжется с вами в ближайшее время.
Внимание!
Скорее всего, вы некорректно заполнили одно или несколько полей формы. Проверьте пожалуйста.
Позвоните мне
Получить подборку
Хотите первыми узнать о доступных предложениях?
Скачать презентацию
Для продолжения скачивания презентации, пожалуйста, укажите ваши данные
Получить индивидуальную консультацию
Соглашение об использовании cookie-файлов. NF Group
1. Общие сведения
На Сайтах АО «НФ Групп» (далее - Сайтах) применяется технология сбора информации с использованием cookie-файлов, которая позволяет повысить эффективность Сайтов, Сервисов АО «НФ Групп». Сookie-файлы — это небольшие текстовые файлы, размещаемые на пользовательском устройстве веб-сайтами, которые посещались пользователем. Они широко используются для того, чтобы веб-сайты могли работать эффективнее, а также, чтобы предоставлять необходимую информацию владельцам, администрации веб-сайта. Использование cookie-файлов - стандартная на данный момент практика для большинства веб-сайтов. Посещая Сайты, пользователь соглашается с условиями использования cookie-файлов, описанными в настоящем документе, в том числе с тем, что АО «НФ Групп» (Адрес: 127006, г. Москва, Воротниковский пер., д. 8, стр. 1) может использовать cookie-файлы и иные данные для их последующей обработки, а также может передавать их третьим лицам для проведения исследований и предоставления услуг Партнерами АО «НФ Групп».
2. Цели использования cookie-файлов
Целями использования cookie-файлов на Сайтах АО «НФ Групп» являются:
- повышение удобства использования Сайтов АО «НФ Групп» (оптимизация структуры и содержимого Сайтов АО «НФ Групп»);
- персонализация взаимодействия (таргетированная реклама объявлений);
- оптимизация сервисов, услуг на сайтах АО «НФ Групп» в соответствии с интересами и потребностями пользователей;
- создание профиля пользователей;
- идентификации пользователей;
- оценка эффективности рекламных кампаний.
Для достижения указанных целей, собираемые данные могут передаваться Партнерам АО «НФ Групп», которые оказывают помощь АО «НФ Групп» в предоставлении услуг. К категориям таких получателей относятся: веб-аналитика, обработка данных, реклама, информационные и рекламные рассылки и другие услуги.
3. Прекращение использования cookie-файлов
На Сайтах АО «НФ Групп» используются cookie-файлы двух разных типов:
- сеансовые cookie-файлы. Это временные файлы cookie, которые хранятся на устройстве пользователя до того момента, когда пользователь покидает Сайты АО «НФ Групп»;
- постоянные cookie-файлы. Эти cookie-файлы остаются на устройстве пользователя на длительный срок или вплоть до момента их ручного удаления.
Прекращение использования cookie-файлов на Сайтах АО «НФ Групп» возможно путем:
- отключения использования cookie-файлов в настройках веб-браузера;
- отказа от использования Сайтов АО «НФ Групп».
Отключение используемых Сайтами АО «НФ Групп» cookie-файлов может привести к снижению удобства использования Сайтами АО «НФ Групп». Большинство браузеров позволяют просматривать, удалять и блокировать cookie-файлы c веб-сайтов. Информация по управлению cookie-файлами может быть найдена в документации на используемый браузер.